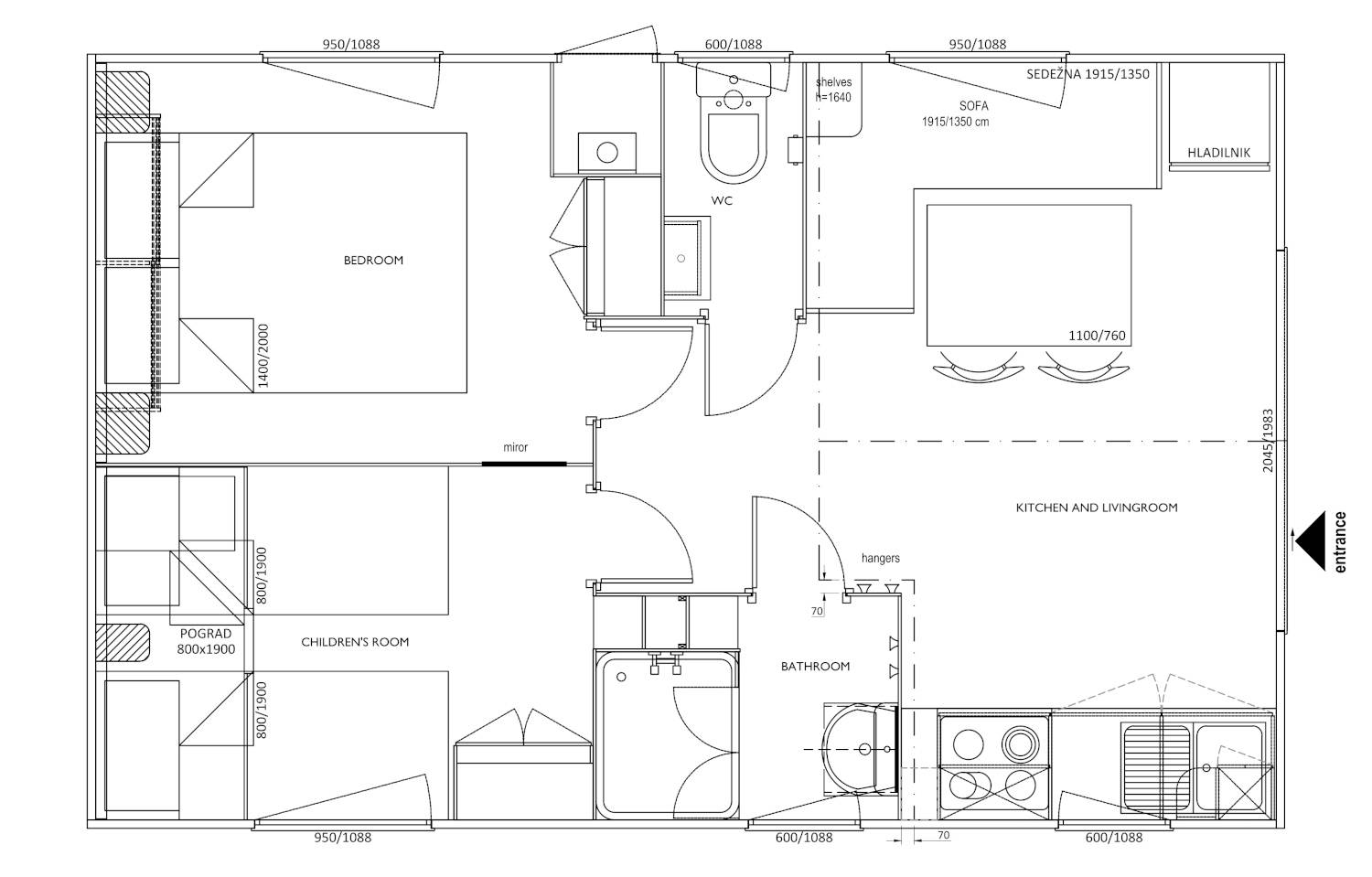
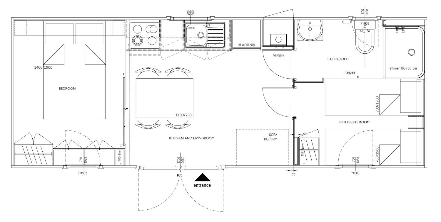
Compare to other layouts

« Back